Главная Продажа Алания Центр Новый инвестиционный проект в центре Аланьи! Отличные цены! 58,8 – 211,3 кв.м.

Новый инвестиционный проект в центре Аланьи! Отличные цены! 58,8 – 211,3 кв.м.

ID: 3170
Расположение: Алания, Центр

Цена: от 224 788

добавить в избранное

распечатать брошюру

Тип недвижимости: квартиры
Год строительства: май 2023
До моря: 1100 м
Комнат: 1+1, 2+1, 3+1, 4+1
Этаж: 9
До центра: 0 км
Площадь: 58, 8 -211 м 2
Мебель: нет
До аэропорта: 120 км

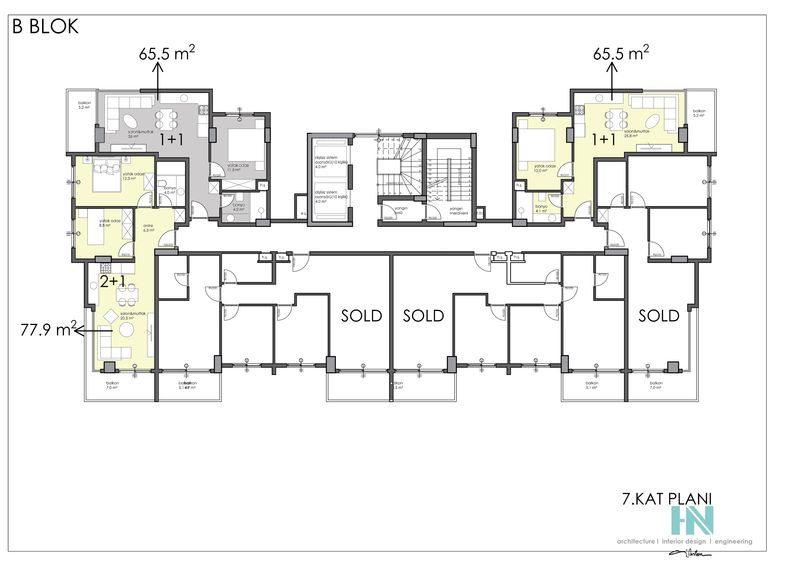
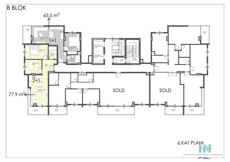
Рады предложить для Вас новый проект в центре города Аланьи. Проект расположен в 1100 метрах от побережья и в шаговой доступности от различных супермаркетов, кафе, аптек и школ. Комплекс будет состоять из двух блоков, которые будут включать в себя 137 апартаментов различных планировок. На продажу представлены такие планировки, как:

  • 1+1, общей площадью от 58, 8 – 65, 5 м2;
  • 2+1, общей площадью 77,9 м2;
  • 2+1 пентхаусы, общей площадью от 118, 9 – 151, 1;
  • 3+1, общей площадью 138, 8 м2;
  • 4+1, общей площадью 211, 3.

Все апартаменты будут с готовым ремонтом, а именно встроенный кухонный гарнитур, окрашены стены и потолки, межкомнатные двери и стальная входная дверь, напольное покрытие, декоративные потолки, выводы под кондиционеры и розетки, полный комплект сантехники и мебели в ванных комнатах. В стоимость входят кондиционеры и водонагреватель.

На территории комплекса имеется открытый бассейн, крытый бассейн, тренажерный зал, хамам, сауна, парковка и генератор.

Данный вариант прекрасно подойдет и для сдачи в аренду, и для проживания. Стоит отметить и отличное месторасположение комплекса, благодаря чему с высоких этажей будет вид на горы и море. Неподалеку находится знаменитый рыбный базар, где Вы всегда сможете приобрести свежую рыбу и там же ее и попробовать. Там же продаются всегда свежие фрукты и овощи от фермеров.

Строительство комплекса завершиться в мае 2023 года, а пока до этого момента Вы сможете приобрести апартаменты с возможностью без% рассрочки до окончания строительства комплекса, при первоначальном взносе от 25%.

 

 

 

Инфраструктура объекта
  • Открытый бассейн
  • Крытый подогреваемый бассейн
  • Сауна
  • Хамам
  • Фитнес зал
  • Детская игровая комната
  • Массажные комнаты
  • Комната переговоров
  • Зал развлечений
  • Бильярд
  • Настольный теннис
  • Теннисный корт
  • Баскетбольное поле
  • Зона барбекю
  • Беседки для отдыха
  • Открытая парковка
  • Круглосуточная охрана
  • Зеленый сад
  • Управляющий
  • Видеонаблюдение
  • Электрогенератор
  • Парковка для велосипедов
  • Огороженная территория
  • Детская площадка в саду
Рассчитать кредит
Купить недвижимость в Турции, если у Вас нет всей суммы в наличии, можно с помощью получения ипотечного кредита. Это достаточно простая процедура, которая не требует длительного сбора документов и сложного процесса оформления.
Покупатель получает неоспоримое преимущество – возможность пользоваться приобретенным жильем, постепенно выплачивая банку-заёмщику необходимую сумму, а также получение вида на жительство в стране. Компания Status Property готова предложить квалифицированную помощь в решение вопросов, касающихся оформления кредита.
Для предварительного вычисления размера ежемесячного платежа, воспользуйтесь удобной формой расчета.
Стоимость объекта
224 788 EUR
Срок кредита
5
10
15
Процентная ставка
6% годовых
Ежемесячный платеж
EUR

Все расчеты ориентировочны, конкретные условия зависят от банка-кредитора

Получить подробную информацию
Понравился объект?
Мы постарались сделать поиск жилья в каталоге нашего сайта максимально удобным и информативным.
Готовы предложить нашим покупателям максимальный спектр услуг по выбору эксклюзивной недвижимости в Турции. Учитывая все Ваши пожелания, подберем наиболее интересные варианты, которые можно будет детально посмотреть, приехав к нам на абсолютно бесплатный ознакомительный тур, а также не выходя из своей квартиры, с помощью видео-встречи в онлайн режиме.
Всегда готовы к открытому, дружескому личному общению!
Заполните форму и мы предоставим Вам всю необходимую информацию

Хочу получить

Вам понравился объект?
Хотите его посмотреть?

Заказать онлайн просмотр
Евгения Шишман
Руководитель отдела продаж

русский, турецкий, английский

Вам также могут быть интересны

Привлекательная вилла 3+1 в Турклере, 220м2 фото 1

Горячее предложение

Привлекательная вилла 3+1 в Турклере, 220м2

Алания, Тюрклер

Комнат:3+1

Площадь: 220 м2

ID:8032

226 800
Квартира 1+1 в шикарном комплексе от ведущего застройщика, 85 м2

Алания, Тюрклер

Комнат:1+1

Площадь: 85 м2

ID:8208

254 000
Квартира 2+1 с мебелью в отличном комплексе! 98 м2

Алания, Махмутлар

Комнат:2+1

Площадь: 98 м2

ID:8442

216 000